แบบบ้าน

รายละเอียดแบบบ้าน
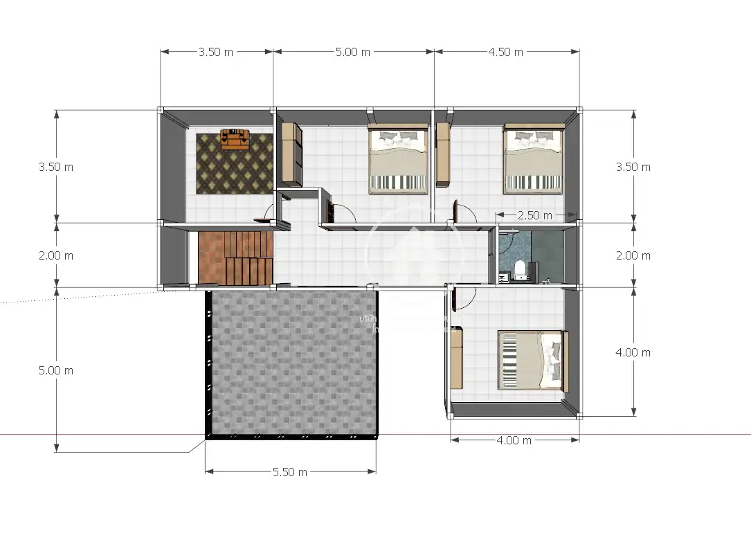
พื้นที่ใช้สอย พื้นที่ใช้สอย
240 ตร.ม.
ห้องนอน ห้องนอน
5 ห้องนอน
ห้องน้ำ ห้องน้ำ
3 ห้องน้ำ
ที่จอดรถ ที่จอดรถ
2 คัน
จำนวนชั้น จำนวนชั้น
2 ชั้น

แบบบ้านแนะนำ